Szanujemy Twoją prywatność
Używamy plików cookie oraz podobnych technologii do:

Masz pełną kontrolę nad swoimi zgodami i możesz je w każdej chwili zmienić. Więcej informacji znajdziesz w naszej [Polityce prywatności].


Masz pełną kontrolę nad swoimi zgodami i możesz je w każdej chwili zmienić. Więcej informacji znajdziesz w naszej [Polityce prywatności].

Współpracujemy z zaufanymi partnerami, w tym z Google, którzy mogą przetwarzać Twoje dane:

  • w celach reklamowych (ad_personalization),  

  • do pomiaru skuteczności kampanii (ad_user_data).

Funkcjonalne (niezbędne)
Analityczne
Marketingowe

Mieszkanie na sprzedaż Piła, Zamość

2 pokoje
29.78 m²
2 921,42 zł/m2
2 piętro
FRP-MS-198912
Oblicz ratę kredytu

87 000 zł

Mieszkanie na sprzedaż
Oferta na wyłączność

Szczegóły oferty

Symbol oferty FRP-MS-198912
Powierzchnia 29,78 m²
Powierzchnia użytkowa [m2] 29,78 m²
Liczba pokoi 2
Piętro 2
Piwnica [m2] 5,52 m²
Stan lokalu do generalnego remontu
Okna PCV
Balkon brak
Widok na podwórko
Dojazd ASFALTOWA
Otoczenie działki zabudowane
Umeblowanie puste
Odległość do komunikacji publicznej [m] 100 m
Odl. do sklepu [m] 100 m
Odl. do przedszkola [m] 200 m
Usytuowanie jednostronne
Pomieszczenia
Marcin Barański

Marcin Barański

Pośrednik w obrocie nieruchomościami - Piła
Nr licencji: 26 307

Napisz wiadomość 67 Ofert

Opis nieruchomości

KAWALERKA 29,78 m² – PIŁA, OS. ZAMOŚĆ, UL. ROOSEVELTA

Na sprzedaż mieszkanie o powierzchni 29,78 m², położone na II piętrze kamienicy przy ul. Roosevelta w Pile, na popularnym i cenionym osiedlu Zamość. Lokal obecnie funkcjonuje jako mieszkanie dwupokojowe, co daje szerokie możliwości aranżacyjne.

Mieszkanie do generalnego remontu – idealna propozycja zarówno dla inwestora (wynajem, flip), jak i dla osób poszukujących nieruchomości do własnej adaptacji według indywidualnych potrzeb.

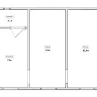
Układ pomieszczeń:

  • pokój I – 10,3 m²

  • pokój II – 9,9 m²

  • kuchnia – 7,4 m²

  • łazienka – 2,1 m²


Ogrzewanie: gazowe

Lokalizacja stanowi jeden z największych atutów nieruchomości. W bezpośrednim sąsiedztwie znajdują się przedszkole i szkoła, liczne sklepy oraz punkty usługowe. W okolicy dostępny jest również stadion żużlowy, kościół, tereny zielone i spacerowe oraz ścieżki rowerowe. Osiedle charakteryzuje się bardzo dobrą komunikacją z centrum miasta oraz innymi jego częściami.

To doskonała oferta dla osób ceniących świetną lokalizację i potencjał inwestycyjny.

Zapraszam na prezentację!

 

Lokalizacja nieruchomości

Kalkulatory

Kalkulator kredytowy

Wysokość raty

PLN
%

Kalkulator kosztów

Podatek od czynności cywilno-prawnych

Taksa notarialna
(opłata notarialna)

Wniosek o wpis do KW

VAT od prowizji
agencji nieruchomości

VAT od taksy notarialnej
(opłaty notarialnej)

Prowizja agencji nieruchomości

Wypisy aktu notarialnego

Razem

Uwaga: mogą wystąpić dodatkowe opłaty za założenie księgi wieczystej oraz ustanowienie hipoteki.

PLN
PLN
PLN
PLN
PLN
PLN
%
PLN

Pośrednik w obrocie nieruchomościami - Piła

Proszę wprowadzić poprawne imię i nazwisko
Proszę wprowadzić poprawny numer telefonu
Proszę wprowadzić poprawny adres e-mail
Proszę zaznaczyć wymagane zgody
Rozwiąż równanie:
14 7
Niepoprawny wynik